Leírás
Vác történelmi belvárosának közelében – bruttó 138 m²- s nagypolgári stílusú családi ház eladó - remek lehetőségekkel.
Eladásra kínálok Vác történelmi belvárosában – a Székesegyházhoz 1 percre lévő ódon stílusú utcában, 4 perc sétára a Duna-parttól – 261 m2- s telken, bruttó 138 m²- s alapterületű, nagypolgári stílusú családi házat.
A lakóingatlan az 1920-as – 30-as években épült téglából, födémszerkezete borított fafödém, fa ácsszerkezetű nyeregtető cserépborítású.
2003-ban a tetőszerkezetét részlegesen, héjalását egészében felújították.
Homlokzata: kőporos vakolatú, kőburkolatú lábazattal.
Az ingatlan jellemzői:
261 m2-es telken, bruttó 138 m2-es alapterületű L alakban épült nagypolgári stílusú családi ház.
Elrendezés:
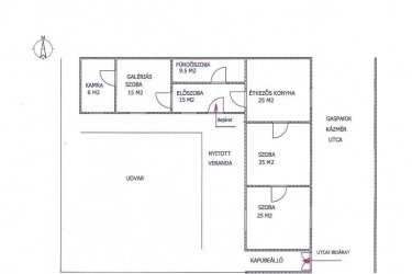
Előszoba (15 m2), fürdőszoba, sarok káddal - dupla kézmosóval (9. 5 m2), galériázott szoba (15 m2),
kamra (6 m2), étkezős konyha (25 m2), 2 db. nagy méretű szoba (25-25 m2), nyitott veranda (10 m2),
pince (7 m2), fedett kapualj 6 m2 itt tárolható egy személygépjármű.
A családi ház belmagassága 3. 4 méter, galériázható, teljes közművel rendelkezik.
A szobákban laminált burkolat és a többi helyiségben járólap burkolat található.
Fűtése gázkazán, radiátor hő leadókkal. Kiegészítő fűtésként épített fatüzeléses kandallóval került kialakításra. Meleg vízellátás kombicirkóról működik.
Nyílászárók kicserélve hőszigetelt faablakokra.
A családi ház utcafronti homlokzata felújításra szorul.
Az eladandó családi ház közvetlen szomszédjában, partner irodánk által szintén értékesítés alatt álló, 1047 m2-es telek és rajta lévő 2 db bontandó ház együttesen remek és kivételes lehetőséget teremt Beruházók, Befektetők számára.
A két telek szervesen illeszkedik egymáshoz, mint az a térképen is jól látszik. Ezáltal a két épület közös utcafrontja már 25 méter.
A telek méretei nem csak egy jelentős épülettömb elhelyezésére, de zárt parkolók építésére, tárolók és hangulatos, ugyanakkor intim udvar és kert kialakítására is lehetőséget adnak.
Felszín alatt 90%-s, a felszín felett 70% beépíthetőség lehetséges az érvényes HÉSZ szerint, s mindezt 13 méteres épületmagassággal lehet tervezni.
Elhelyezkedés:
A város frekventált részén, karnyújtásnyira minden fontos intézménytől, üzletektől, éttermektől, bankoktól és kávézóktól. Vasútállomás 10 percre, ahonnan zónázóval 26 perc alatt a Nyugati pályaudvarra érhetünk. A busz pályaudvar 5 perc alatt elérhető.
A főtér és a Duna-part közelsége páratlan hangulatot biztosít, így ár-érték arányban is kiemelkedő befektetési lehetőség.
Bár a ház igazán otthonos érzetet kelt, ettől függetlenül - vagy épp ezért- lakhatás mellett üzleti tevékenységre is tökéletes választás.
Elegáns orvosi rendelő, ügyvédi iroda is teljesen elképzelhető itt.
Ár: 125. 000. 000.-Ft
+
Ár: a telek 2 bontandó házzal 98. 000. 000.-Ft
További információért és a meg tekintéssel kapcsolatban, várom megtisztelő hívását!
Tel: +36705581160
Térkép
Rövid infók
Állapot: használt
Kategória: Családi ház
Itt található: Pest megye, Vác
Voo.hu tájékoztatás
A Voo.hu üzemeltetői nem vállnak felelősséget a hirdetésben szereplő termékekért és a hirdetésben megadott adatok hitelességéért! A problémás hirdetést kérlek jelentsd nekünk!
